We use cookies to ensure our site functions properly and to store limited information about your usage. You may give or withdraw consent at any time. To find out more, read our privacy policy and cookie policy.
Manage Cookies
A cookie is information stored on your computer by a website you visit. Cookies often store your settings for a website, such as your preferred language or location. This allows the site to present you with information customized to fit your needs. As per the GDPR law, companies need to get your explicit approval to collect your data. Some of these cookies are ‘strictly necessary’ to provide the basic functions of the website and can not be turned off, while others if present, have the option of being turned off. Learn more about our Privacy and Cookie policies. These can be managed also from our cookie policy page.
Strictly necessary cookies(always on):
Necessary for enabling core functionality. The website cannot function properly without these cookies. This cannot be turned off. e.g. Sign in, Language
Analytics cookies:
Analytical cookies help us to analyse user behaviour, mainly to see if the users are able to find and act on things that they are looking for. They allow us to recognise and count the number of visitors and to see how visitors move around our website when they are using it. Tools used: Google Analytics
The period for feedback has closed, on the Te Manawa ō Owhatiura trial project.
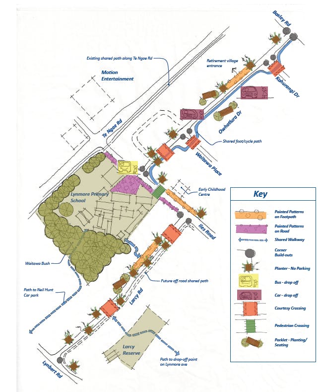
The Te Manawa ō Owhatiura trial aims to create child-friendly streets that allow all people to move safely around our community. The trial project is the first of it's kind in Rotorua, and will change the way people drive, walk, bike or scooter through the area on their way to school, work, or the Whakarewarewa Forest.
Tell us about your experience of the trial project, by taking part in the survey. We want to know what parts of the design you think are working well, and what parts could be improved. Adjustments will be made to the design during the trial period, based on community feedback. You can also place feedback by emailing cycling@rotorualc.nz. See any project updates or adjustments to the trial layout here.
A working group consisting of students, staff and parents from Lynmore Primary School, local residents, members of Tatau Pounamu and Rotorua Cycle Action and the New Zealand Police are leading this mahi. Rotorua Lakes Council are supporting the working group to manage the project.
The period for feedback has closed, on the Te Manawa ō Owhatiura trial project.
The Te Manawa ō Owhatiura trial aims to create child-friendly streets that allow all people to move safely around our community. The trial project is the first of it's kind in Rotorua, and will change the way people drive, walk, bike or scooter through the area on their way to school, work, or the Whakarewarewa Forest.
Tell us about your experience of the trial project, by taking part in the survey. We want to know what parts of the design you think are working well, and what parts could be improved. Adjustments will be made to the design during the trial period, based on community feedback. You can also place feedback by emailing cycling@rotorualc.nz. See any project updates or adjustments to the trial layout here.
A working group consisting of students, staff and parents from Lynmore Primary School, local residents, members of Tatau Pounamu and Rotorua Cycle Action and the New Zealand Police are leading this mahi. Rotorua Lakes Council are supporting the working group to manage the project.
Te Manawa ō Ōwhatiura trial has finished this stage
Wednesday 18 November, 2-6 pm at Lynmore Primary School.
An opportunity for the community to drop in, find out more about the trial project and share their design ideas.
Collecting ideas from the community to create a design
Te Manawa ō Ōwhatiura trial has finished this stage
December 2020 - February 2021
Collecting feedback on a concept design of the trial
Te Manawa ō Ōwhatiura trial has finished this stage
March 2021
The trial is live
Te Manawa ō Ōwhatiura trial has finished this stage
The Te Manawa ō Owhatiura trial began in April 2021, and will continue for a period of 6-12 months.
Design elements are being introduced in two stages. Stage one includes placing the crossings and build-outs. Stage two will follow shortly after, adding colour and vibrancy to the space.
The community can place feedback on the project until 30 November 2021.
Feedback period closes
Te Manawa ō Ōwhatiura trial has finished this stage
Feedback closes at 5pm on 30 November 2021
Te Manawa o Owhatiura trial ends
Te Manawa ō Ōwhatiura trial is currently at this stage
Date to be confirmed
Te Manawa ō Owhatiura concept design
Videos
Click here to play video
Students from the Te Manawa ō Owhatiura working group, introduce the trial project
Videos
Click here to play video
Community drop-in session - 18 November 2020
Gathering ideas from the community and Lynmore School whanau on how we can improve the safety and vibrancy of Larcy Road, Owhatiura Drive and Iles Road.